小田急サザンタワー
所在地:
渋谷区








賃料
応相談
共益費
応相談
敷金
応相談
礼金
応相談
償却
無し
更新料
無し
物件名
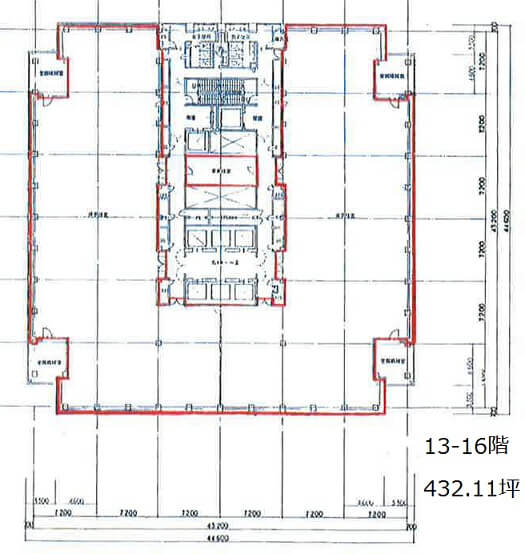
ニューオータニガーデンコート
階数
30階
住所
東京都千代田区紀尾井町4-1
最寄駅
赤坂見附駅
竣工
1991年
基準階面積
448坪
エレベーター数
16基
フロア仕様
天井高
空調
小田急サザンタワー
所在地:
渋谷区
恵比寿ガーデンプレイスタワー
所在地:
渋谷区
品川グランドセントラルタワー
所在地:
港区
東京ミッドタウン・タワー
所在地:
港区
丸の内ビルディング
所在地:
千代田区
GRNTOKYO SOUTHTOWER
所在地:
千代田区
ニューオータニガーデンコート
所在地:
千代田区
秋葉原UDX
所在地:
千代田区
アースコンサルティングについての御質問、御相談はこちらから。
メールフォームにて承っております。