小田急サザンタワー
所在地:
渋谷区








賃料
応相談
共益費
応相談
敷金
応相談
礼金
応相談
償却
無し
更新料
無し
物件名
秋葉原UDX
階数
22階
住所
東京都千代田区外神田4-14-1
最寄駅
秋葉原駅
竣工
2006年
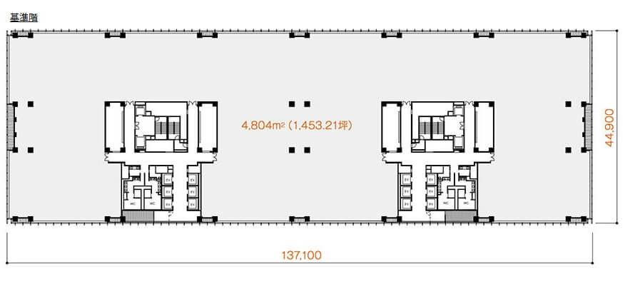
基準階面積
1454.56坪
エレベーター数
12基
フロア仕様
OAフロア有り
天井高
2,800mm
空調
個別空調
小田急サザンタワー
所在地:
渋谷区
恵比寿ガーデンプレイスタワー
所在地:
渋谷区
品川グランドセントラルタワー
所在地:
港区
東京ミッドタウン・タワー
所在地:
港区
丸の内ビルディング
所在地:
千代田区
GRNTOKYO SOUTHTOWER
所在地:
千代田区
ニューオータニガーデンコート
所在地:
千代田区
秋葉原UDX
所在地:
千代田区
アースコンサルティングについての御質問、御相談はこちらから。
メールフォームにて承っております。